Ref:#725 Triplex For SALE in the Center of LARNACA

$ 3,400,000 Larnaca , Cyprus Buy

Description

The multi-storey residential complex is located at the entrance to the territory of the new port of Larnaca, in close proximity to the sea. The building is one of the tallest in the city.

The first two ground floors of the high-rise are given over to parking, the remaining nine house modern luxury residential apartments with private gardens and greenery, indoor and outdoor terraces, as well as Jacuzzi and swimming pools. Not an unimportant bonus - each apartment have a stunning panoramic view of the surrounding area.


* Whole two floors apartment with roof top garden.
* 4.5 m floor to ceiling height
* 180-degree marina & port view
* Floor to ceiling windows to maximize sunlight and views
* Fully equipped gym
* Reception lobby area to welcome and greet guests
* Concierge services
* Private elevator
* Decorative fireplace
* Private storage rooms on each floor
* Smart Home Systems
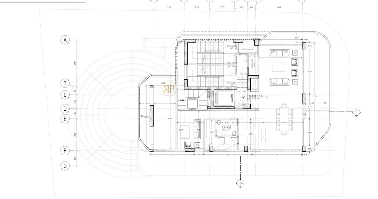
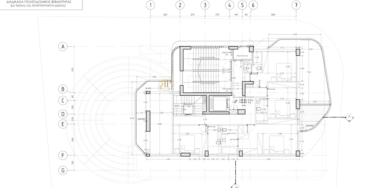
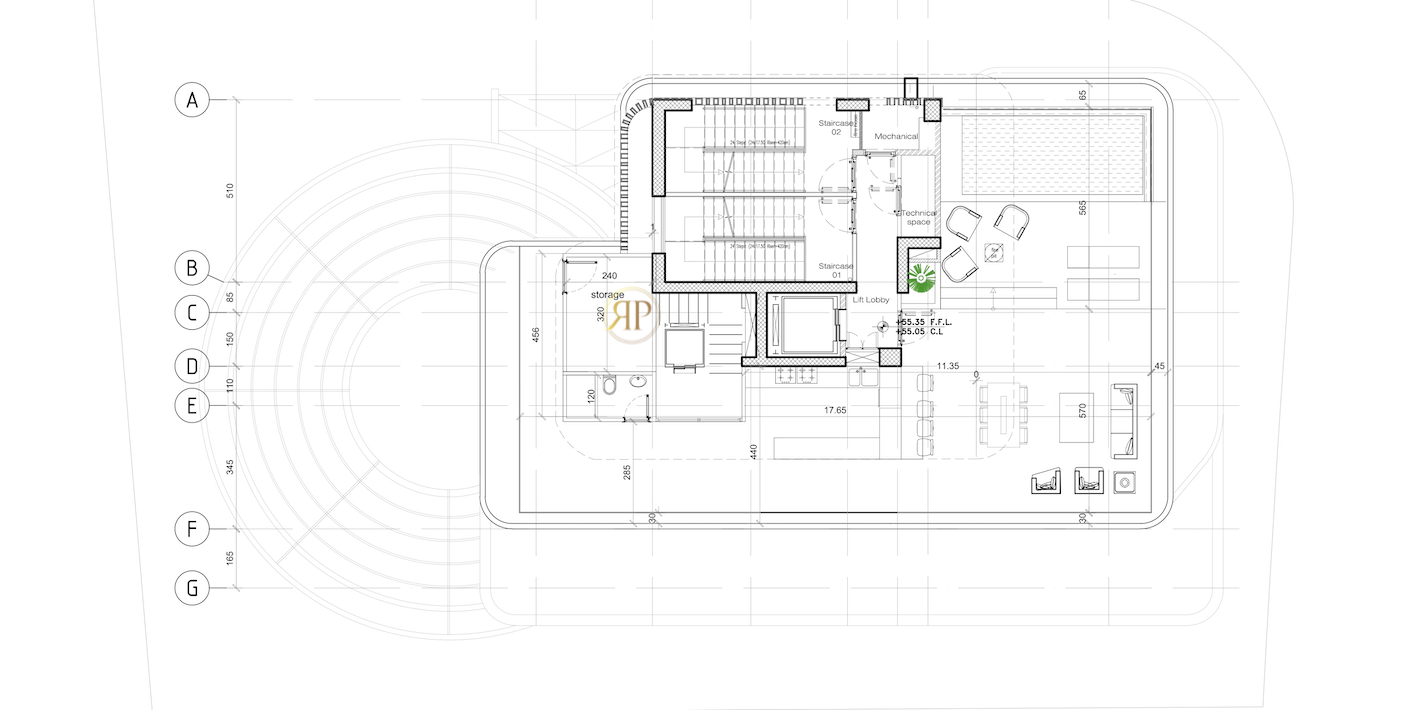
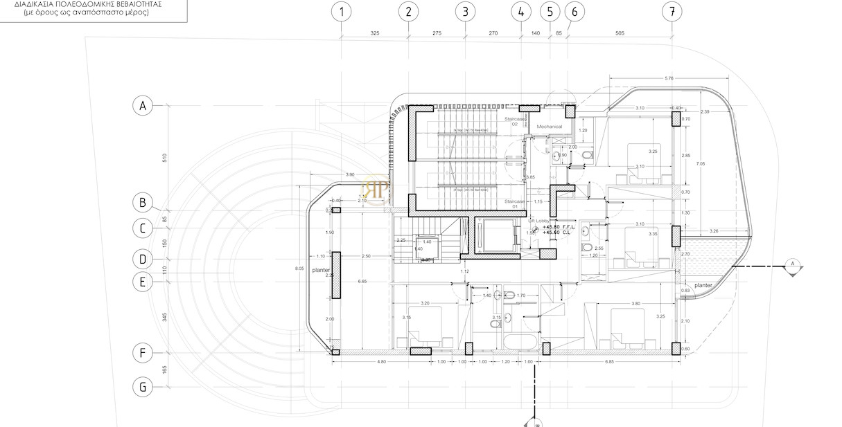
Three level penthouse:
* Main level comprises of living room, dining room, kitchen area, play room, service room, pantry room, guest toilet, huge outdoor terrace 
* Private level comprises of 4 ensuite bedrooms with an option of making them three and one office (master bedroom has private access to balcony with jacuzzi)
* Outdoor level on roof garden comprises of swimming pool, firepit lounge area, barbecue area, bar with stool chairs, dining area, ensuite room that can be used as a storage room, sauna room etc.

* Price 3.4 million + VAT
* Delivery: November 2026

Floor Plans

Size Rooms Bathrooms Parking
331 4 5 "
floor-plans Property floor plan in pdf

Property Details

  • Property Id:725
  • Price:$3,400,000/ 10,000$ / Sqm
  • Property Type: Triplex
  • Bedrooms:4
  • Bathrooms:5
  • Kitchen:2
  • Living Room:3
  • Dining Room:2
  • Master Bedroom:4
  • Furnished:No
  • Floor:11th, 12th, 13th
  • Reception Room:Yes
  • Land area:0 sqm2
  • Year Built:2026
  • Available From:November 2026
  • Parking: "
  • City:Larnaca, Cyprus

Features

  • Air Conditioning
  • Pool
  • Gym
  • Jacuzzi
  • Alarm
  • Garage
  • Security
  • Garden
  • Boiler
  • Fireplace
  • Maid's Room
  • Concierge Room
  • Central Heating
  • Laundry Room
  • Store Place
  • Terrace
  • driver's room
  • steam room
  • sauna room
  • Smart Home Systems

Property Location

Property Video

Write a Comment

Comments Section